information
home
名称描述内容
400-100-6192
CONTACT US
guide
365天服务热线
about us
DESIGNER
PRODUCTS
盘点|5款带精美门面的高颜值自建房,居家赚钱不是梦!
来源:村小宅 | 作者:村小宅 | 发布时间: 2021-06-18 | 403 次浏览 | 分享到:
20000款专业别墅设计作品,村小宅·把优质的乡村别墅带入每个家乡。


许多人往往希望实现居家吸金

那把一部分空间拿来作为门面

无论是出租或者自用

都能实现这个美好的愿景


村小宅在此整理出5幢精美别墅

我们的智造设计师们精心设计

 打造宽敞而精美的门面

实现居家吸金的目标

一起来看看吧



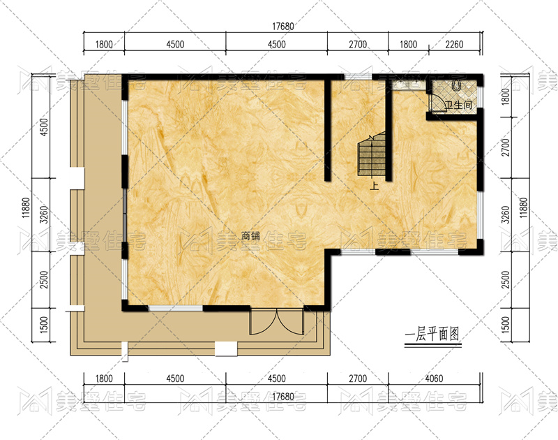
01




别墅编号:MS2003279

占地尺寸:17.68x11.88米

占地面积:151.10平方米

建筑面积:463.26平方米

结构类型:框架结构

主体造价:69万左右

建筑高度:15米




02



别墅编号:MS2002248

占地尺寸:16.54x16.24米

占地面积:222.79平方米

建筑面积:402.84平方米

结构类型:砖混结构

主体造价:51万左右

建筑高度:9.61米




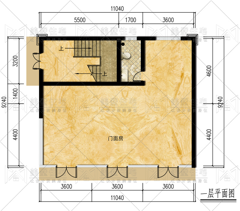
03



别墅编号:MS2004066

占地尺寸:11.04x9.24米

占地面积:102.01平方米

建筑面积:371.89平方米

结构类型:框架结构

主体造价:55万左右

建筑高度:16.518米


04


别墅编号:MS2006218

占地尺寸:18.24x14.12米

占地面积:243.31平方米

建筑面积:629.57平方米

结构类型:框架结构

主体造价:110万左右

建筑高度:13.45米



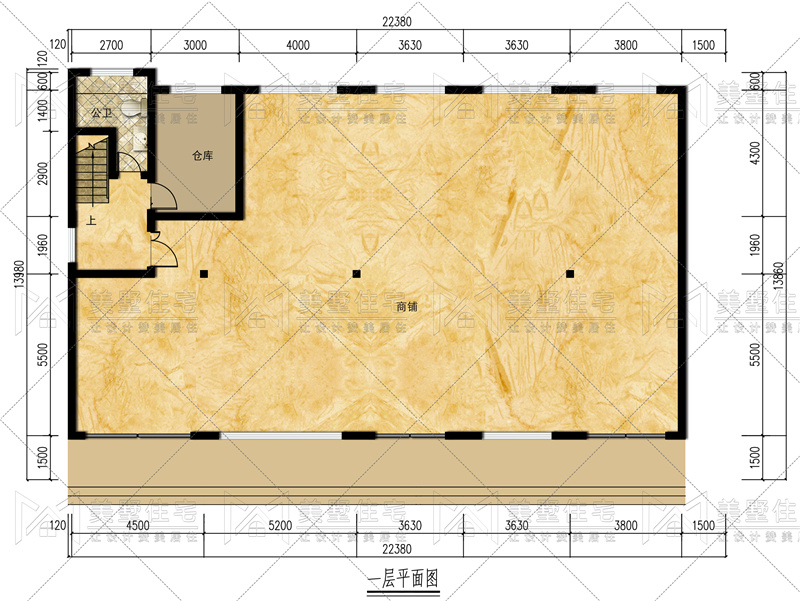
05


别墅编号:MS2007047

占地尺寸:22.38x13.98米

占地面积:318.95平方米

建筑面积:684.28平方米

结构类型:框架结构

主体造价:47万左右

建筑高度:11.25米




以上的这5款别墅

都带有宽敞的门面设计

既可以出租也可自用

居家赚钱不是梦



10年+从业经验资深设计师

业务范围:别墅设计、庭院景观设计、园林规划、

现场施工、装修装潢服务等


  电话:18989473103


诚招加盟商



     诚招各地施工加盟商    

联系电话:15170919314




建宅必备精选上百套经典款式入册
全国3万+用户信赖选购,为全家人建宅出谋划策。
30000 + users across the country trust to purchase and offer suggestions for the whole family to build their homes. ​
  • 姓名*
  • 电话*
购买获取